Energetické riešenie HVAC pre Žilinskú univerzitu
Odborné energetické posúdenie vybraných objektov fakulty informatiky na Žilinskej univerzite a následné vypracovanie riešenia nového systému HVAC s ohľadom na zabezpečenie nízkej energetickej náročnosti. Celý systém je namodelovaný v programe REVIT čomu sa minimalizuje riziko kolízii na stavbe.


Mníchovský potok
Návrh a realizácia vykurovacích a chladiacich systémov pre rekreačné zariadenie. Na chladenie boli použité jednotky FAN-COIL a vykurovanie bolo zabezpečené podlahovým vykurovaním. Na zabezpečenie potreby tepla a chladu a udržiavania tepelnej pohody objektu slúži tepelné čerpadlo s výkonom 73 kW.


Materská škola
Návrh a realizácia vzduchotechniky pre materskú školu v obci Štrba, ktorá zabezpečuje optimálne mikroklimatické podmienky pre zamestnancov a deti.


CTP VOD3
Návrh a realizácia vykurovania, vzduchotechniky a chladenia pre montážno-skladovú halu, ktorá slúži ako hlavný sklad pre nový obchodný reťazec Biedronka. Cieľom je zabezpečiť optimálne klimatické podmienky pre skladovanie tovaru a efektívne fungovanie prevádzky.


CTP XINQUAN
Návrh a realizácia vykurovania, vzduchotechniky a chladenia pre montážno-skladovú halu CTP XINQUAN v obci Petrovany, so zabezpečením optimálnych klimatických podmienok pre skladovanie tovaru a efektívne fungovanie prevádzky.

CTP BOSCH
Kompletná projekcia vykurovania, vzduchotechniky a chladenia pre skladovo-výrobnú halu spoločnosti CTP Bosch.


BURGMAIER
Návrh a realizácia centrálneho chladenia obrábacích a frézovacích strojov na výrobu vysoko presných dielcov pre strojnícke aplikácie. V súlade s požiadavkou klienta bola celá strojná technológia umiestnená mimo výrobnej haly a kompaktne osadená v lodnom kontajneri.


Výrobná hala
Návrh a realizácia technológie pre chladenie technologických súčastí výrobnej haly pre výrobu plynových kotlov. Navrhovaná technológia pokrývala chladenie prevádzkových chemikálii a laserového generátora.


Bytový dom Šíp
Projektová dokumentácia rieši vykurovanie a chladenie bytového domu pomocou tepelných čerpadiel, s využitím odpadového tepla v lete pre ohrev teplej vody.


Modernizácia strojovne - bytový dom
Odpojenie bytového domu od CZT a náhrada za kaskádu tepelných čerpadiel ako zdroja tepla s využitím FVE ako doplnkovým zdrojom elektrickej energie.


CTP kompresorovňa
Systematické využívanie odpadového tepla z kompresorov pre ohrev teplej vody a vykurovanie počas zimnej sezóny vo výrobnej hale.

Neways
Návrh kompresorového chladenia vo výrobnej hale s optimalizáciou pre technologické chladenie spájkovacích liniek, s využitím freecoolingu.


Vitalo
Návrh technológie pre úpravu vzduchu a pokrytie tepelných strát a záťaže v čistých priestoroch výrobnej haly.


Rezidencia Stráže - bytový dom
Projektová dokumentácia rieši vykurovanie a chladenie pomocou tepelného čerpadla s rekuperáciu tepla pre bytový dom.

Historická budova
Riešenie projektu HVAC historickej budovy pomocou stropných trámov s variabilným prietokom.

Kancelárske priestory
Projektová dokumentácia rieši
vetranie a chladenie kancelárií. Navrhnutý bol centrálny rekuperačný systém s prívodom čerstvého vzduchu a odvodom znečisteného vzduchu z každej miestnosti. Chladenie je zabezpečené pomocou tepelného čerpadla s vnútornými kanálovými jednotkami.

Bábkové divadlo


CTP KSC-14
Projektová dokumentácia rieši vzduchotechniku a chladenie hál administratívnych vstavkov objektu SO 101 Montážno-skladovej haly KSC-14.


Mätsa Tissue

Výrobno-skladová hala ZAR7
Projektová dokumentácia rieši vykurovanie administratívnych vstavkov pre výrobno-skladovú halu ZAR7.

Rodinný dom



ARC
Projektová dokumentácia rieši návrh chladenia administratívnych priestorov novostavby - ARC v Žiline.


Rodinný dom
Dokumentácia pre stavebné povolenie rieši vzduchotechniku rodinného domu v obci Kotešová.


Rodinný dom
Dokumentácia pre stavebné povolenie rieši vykurovanie rodinného domu v obci Lietava.


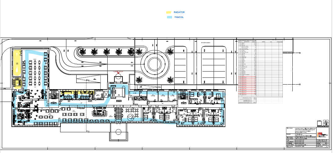
Hotel Skalka
Projektová dokumentácia rieši prístavbu a nadstavbu existujúceho liečebného domu Skalka v Rajeckých Tepliciach. Navrhovaná wellness časť je koncipovaná ako novostavba, ktorá rozšíri funkcie hotela o moderné relaxačno-oddychové priestory. Súčasťou riešenia je aj kompletná technická infraštruktúra.

Rodinný dom
Dokumentácia pre stavebné povolenie rieši vzduchotechniku rodinného domu, kde bola navrhnutá VZT jednotka ELEKTRODESIGN SABIK 500 A v obci Malachov.


